このページを印刷する
- 価格
-
4,898万円
- 間取
-
3LDK
| 所在地 | 東京都江戸川区西一之江3丁目 |
|---|---|
| 交通 |
|
| 築年月 | 2026年7月 | 新築/中古 | 新築 |
|---|---|---|---|
| 面積 | 80.25m²(24.27坪) | 計測方式 | |
| バルコニー | 向き | ||
| 建物階数 | 地上2階 | 所在階 | |
| 部屋番号/区画番号 | --- | 総戸数/総区画数 | --- |
| 建物構造 | 木造 | ||
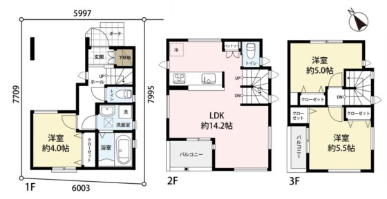
| 間取内容 | LDK14.2帖 2階 1室洋室4.0帖 1階 1室洋室5.5帖 3階 1室洋室5.0帖 3階 1室 | ||
| 駐車場 | 取引態様 | 売主 | |
| 引渡/入居時期 | 相談 | 現況 | 未完成 |
| 地目 | 宅地 | 用途地域 | 第一種住居 |
| 都市計画 | 市街化区域 | 地勢 | 平坦 |
| 土地面積 | 47.04m²(14.22坪) | 土地面積計測方式 | 公簿 |
| 私道負担面積 | 9.26m²(2.8坪) | ||
| 建ぺい率 | 60% | 容積率 | 200% |
| 土地権利 | 所有権 | 接道状況 | 一方 |
| 接道方向1 | 北東 | 接道間口1 | 5.9m |
| 接道種別1 | 私道 | 接道幅員1 | 4.0m |
| 位置指定道路1 | 位置指定道路 | ||
| 国土法届出 | 不要 | ||
| 周辺環境 | |||
| 設備・条件 |
|
||
| 自社物 | 自社物 | 状態 | |
| 物件番号 | 5097 | ||
| 情報登録日 | 2025年12月26日 | 情報更新日 | 2025年12月27日 |
物件掲載内容と現況に相違がある場合は現況を優先といたします。













